Nowoczesny dom 2w1 – Nowe Miasto

Białystok
Dodaj do notesu Dodane

Informacje

Cena
1 680 000 zł
Numer oferty
2753
Typ transakcji
Sprzedaż
Powierzchnia
214 m2
Cena za m2
7 850,47 zł / m2
Liczba pokoi
8
Piętro
parter
Powierzchnia działki m2
1 600
Rok budowy
2022
Standard wykończenia
wysoki
Stan domu
bardzo dobry
Rynek
wtórny
Typ zabudowy
wolnostojący
Materiał budowlany
beton komórkowy
Powierzchnia mieszkalna
214
Liczba kondygnacji
1
Forma własności
własność
Liczba łazienek
3
Liczba sypialni
5
Kuchnia
wnęka
Łazienka
z wc
Okna
PCV
Łącze internetowe
światłowód
Liczba miejsc parkingowych
2
Garaż
wolnostojący
Woda
miejska
Gaz
jest
Ogrzewanie
gazowe
Kanalizacja
miejska
Prąd
jest
Typ Balkonu
taras
Ogrzewanie
gazowe

Opis nieruchomości

Na sprzedaż wyjątkowy, funkcjonalny dom z 2022 roku, położony w spokojnej części Nowego Miasta.
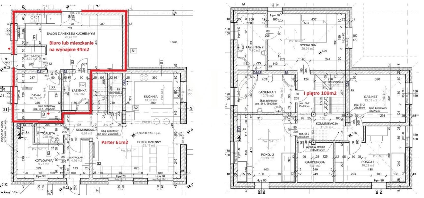
Nieruchomość o łącznej powierzchni 214 m² została zaprojektowana w koncepcji 2w1 (dom + mieszkanie), co czyni ją idealną propozycją dla rodzin wielopokoleniowych lub osób szukających przestrzeni pod działalność gospodarczą.

Dom główny – 170 m²
Parter:
- wiatrołap,
- pomieszczenie gospodarcze,
- korytarz,
- przestronny salon z jadalnią,
- kuchnia (niebieskie fronty),
- spiżarnia,
- łazienka.

Piętro:
- duża sypialnia z wydzielonym pomieszczeniem pod prywatną łazienkę (obecnie stan surowy – wykorzystywane jako pralnio-suszarnia),
- 3 dodatkowe sypialnie,
- przestronna łazienka z wanną i prysznicem,
- garderoba.

Dom jest w pełni umeblowany – gotowy do natychmiastowego zamieszkania, bez dodatkowych nakładów finansowych.

Niezależne mieszkanie – 44 m²
- salon z wyjściem balkonowym,
- kuchnia (białe fronty),
- sypialnia,
- łazienka (na zdjęciu z pralką i suszarką).

To doskonałe rozwiązanie dla rodziców, dziadków, dorastających dzieci – blisko, a jednocześnie z zachowaniem pełnej prywatności.
Świetnie sprawdzi się również jako biuro, gabinet lub pod wynajem.

Poddasze nieużytkowe
120 m².

Dodatkowe atuty: ogrzewanie podłogowe w całym domu, monitoring zewnętrzny, blaszany garaż dwustanowiskowy, zbiornik na deszczówkę.

Zapraszam na prezentację.

Kontakt:
Magdalena Gąsowska
+ 48 884 412 434

Treść niniejszego ogłoszenia nie stanowi oferty handlowej w rozumieniu Kodeksu Cywilnego. Oferta wysłana z programu IMO dla pośredników.

Dodatkowe informacje

  • Poddasze
  • Domofon

Zobacz na mapie

Zobacz na mapie

Kontakt

Ta strona jest chroniona przez reCAPTCHA i Google Polityka prywatności i Warunki korzystania z usługi.